PGS and Daunis: Innovation and technical services that transform the industry

At PGS, together with Daunis, we take the industry to the next level. We combine supply with automation, project programming, mechanical design, and construction of electrical cabinets, offering complete and customized technical solutions for each company.

Project development

  • Automation of production lines.
  • Retrofits / Machine conversion.
  • Turnkey projects.
  • Development of industrial applications.
  • Prototyping, projects, and machines.
  • Mechanical designs. Optimization and improvement of machines or installations.
  • Implementation of improvements in production lines.
  • Adapting machinery safety and its implementation.

Programming

  • Control and inspection through artificial vision.
  • Remote service and remote diagnostics of equipment or installations.
  • PLC programming.
  • Retrofitting/updating old programming to current technology.
  • Programming in LabView.
  • Programming of the main PLCs on the market: Schneider, Omron, Siemens, Beckhoff, Lenze, CodeSys, Delta, among others…
  • SCADA systems.
  • PLC migrations.
  • Design and applications in MOTION.
  • Design and installation of the application that best matches the client’s requirements: Automation, Drivers, smart lines.

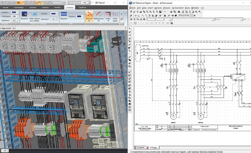
Electrical cabinets

  • Design and assembly of electrical distribution, power, and control panels.
  • Digitization of electrical cabinets.
  • Verification of the conformity of electrical equipment with its documentation.
  • Dielectric tests.
  • Voltage tests.
  • Delivery of test results to be attached to the CE certificate.
  • Design of electrical diagrams.

Mechanical design

  • Design of mechanical solutions through our mechanical department.
  • Development of solutions and applications focused on the industry.
  • Technical drafting office, using SolidEdge.
  • Machine updates.
  • Technical advice to the industry and engineering solutions.

Industrial maintenance and installations

  • Diagnosis and testing of electrical cabinets.
  • Diagnosis and thermographic studies.
  • Adapting old electrical cabinets and bringing them into compliance.
  • Industrial electrical installations.
  • Qualified technicians for installations.
  • Creation of electrical diagrams.
  • Troubleshooting.
  • We expand installations and/or design new ones.
  • Both mechanical and electrical installations.
  • Corrective and Preventive Maintenance.
  • Preventive maintenance planning: organization and tasks.